Перейти к основному содержанию
ВКонтакте
Инстаграм
+7 (3452) 611-390
les_45@mail.ru
Форма поиска
поиск
О компании
Акции
Проекты домов
Лафет
Профилированный брус
Оцилиндрованное бревно
Керамзитоблоки
Оформление заказа
Проекты бань
Лафет
Оцилиндрованное бревно
Профилированный брус
Услуги
Фундамент
Кровельные работы
Внутренняя отделка
Строительство заборов
Объекты
Портфолио
Блог
Video Post Item
Контакты
О компании
Акции
Проекты домов
Лафет
Профилированный брус
Оцилиндрованное бревно
Керамзитоблоки
Оформление заказа
Проекты бань
Лафет
Оцилиндрованное бревно
Профилированный брус
Услуги
Фундамент
Кровельные работы
Внутренняя отделка
Строительство заборов
Объекты
Портфолио
Блог
Video Post Item
Контакты
Вы здесь
Главная
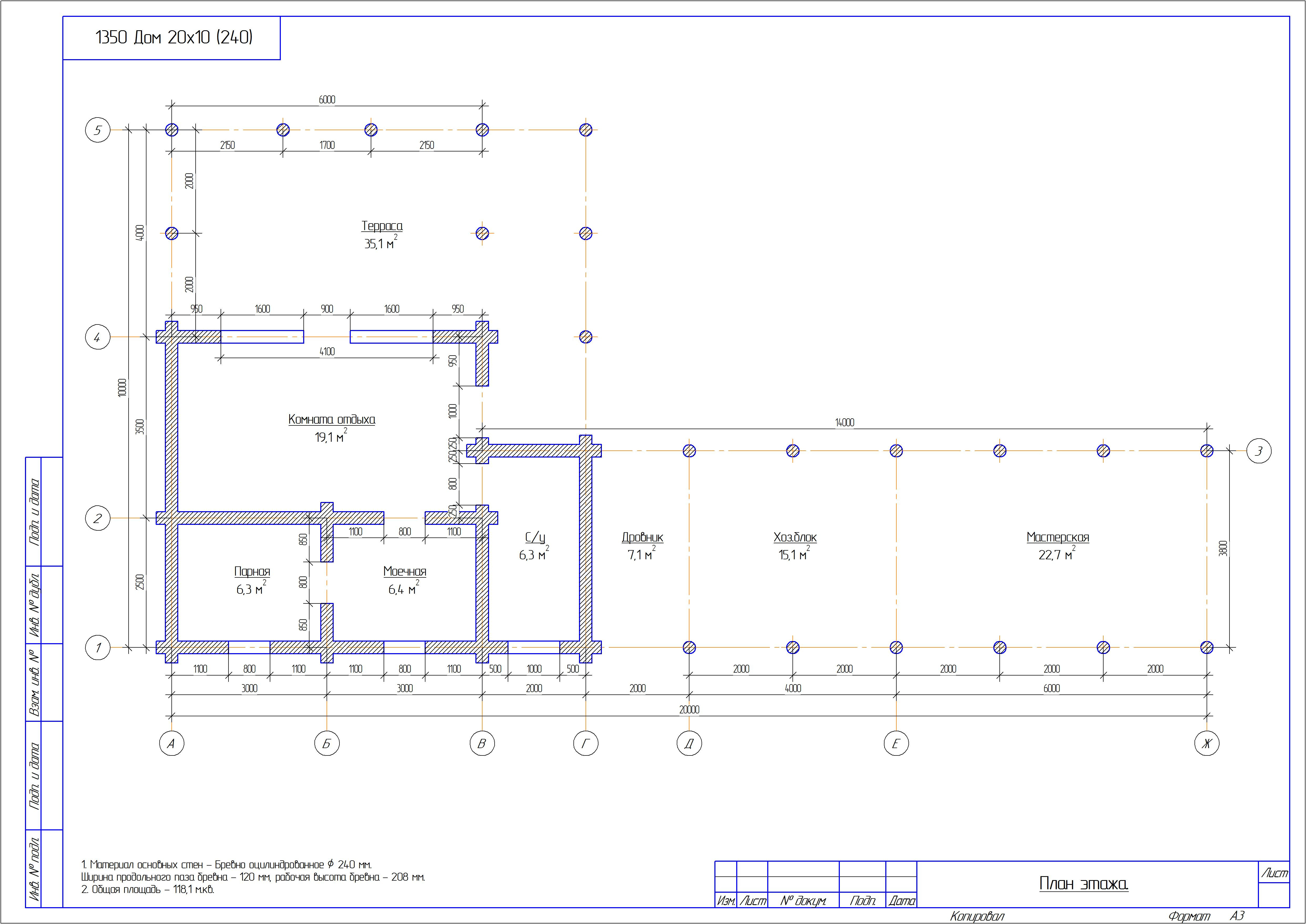
Проект № 1350 г. Тюмень КП Зеленые Холмы Ирбитский тракт. Окончание строительства апрель 2023г
Описание проекта
Похожие проекты
Проект № 1671 г. Тюмень .КП.28 Верст. Ирбитский тракт. 15.01.2026
Баня
Проект № 1663 г. Екатеринбург. д. Дубровина . Московский тракт.01.12.2025
Дом двухэтажный
Проект № 1603 г. Шадринск. Курганская область 10.11.2025
Дом одноэтажный
Проект № 1660 .г. Тюмень.Д.Решетникова.Салаирский тракт.10.10.2025
Баня
Проект № 1638 г. Тюмень.Д. Каменка Ирбитский тракт.05.10.2025
Баня
Проект № 1647 г.Тюмень.ТД.Царицыно. Велижанский тракт. 01.10.2025
Дом одноэтажный
Проект № 1637. г. Тюмень.КП.Сказка .Ирбитский тракт.
Дом одноэтажный
Проект №1661.г.Тюмень.КП.Малиновка.Московский тракт.20.09.2025
Дом одноэтажный
Проект № 1651.г.Ишим.Д. Пеганова.Ялуторовский трак. 05.08.2025
Дом двухэтажный
Проект № 1630 г. Тюмень.СНТ.Сосенка.Салаирский тракт.05,08,2025
Дом двухэтажный