Перейти к основному содержанию
ВКонтакте
Инстаграм
+7 (3452) 611-390
les_45@mail.ru
Форма поиска
поиск
О компании
Акции
Проекты домов
Лафет
Профилированный брус
Оцилиндрованное бревно
Керамзитоблоки
Оформление заказа
Проекты бань
Лафет
Оцилиндрованное бревно
Профилированный брус
Услуги
Фундамент
Кровельные работы
Внутренняя отделка
Строительство заборов
Объекты
Портфолио
Блог
Video Post Item
Контакты
О компании
Акции
Проекты домов
Лафет
Профилированный брус
Оцилиндрованное бревно
Керамзитоблоки
Оформление заказа
Проекты бань
Лафет
Оцилиндрованное бревно
Профилированный брус
Услуги
Фундамент
Кровельные работы
Внутренняя отделка
Строительство заборов
Объекты
Портфолио
Блог
Video Post Item
Контакты
Вы здесь
Главная
»
Проекты
»
Дома
»
Проекты домов из оцилиндрованного бревна
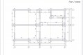
Проект №19, двухэтажный дом 10.2х6.2, общая площадь 57,5 кв.м. (диаметр бревна 240)
вернуться назад
Проект №19, двухэтажный дом 10.2х6.2, общая площадь 57,5 кв.м. (диаметр бревна 240)
Оставить заявку на проект
0,00 руб.
Категории:
Дома
,
Проекты домов из оцилиндрованного бревна
,
Дома от 100 до 150 кв.м.
.
Описание
Схожие проекты
Проект № 1703
0
0,00 руб.
Проект № 1703
0
0,00 руб.
Проект № 1703
0
0,00 руб.
Проект № 1702
0
0,00 руб.